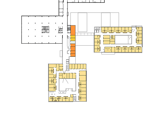
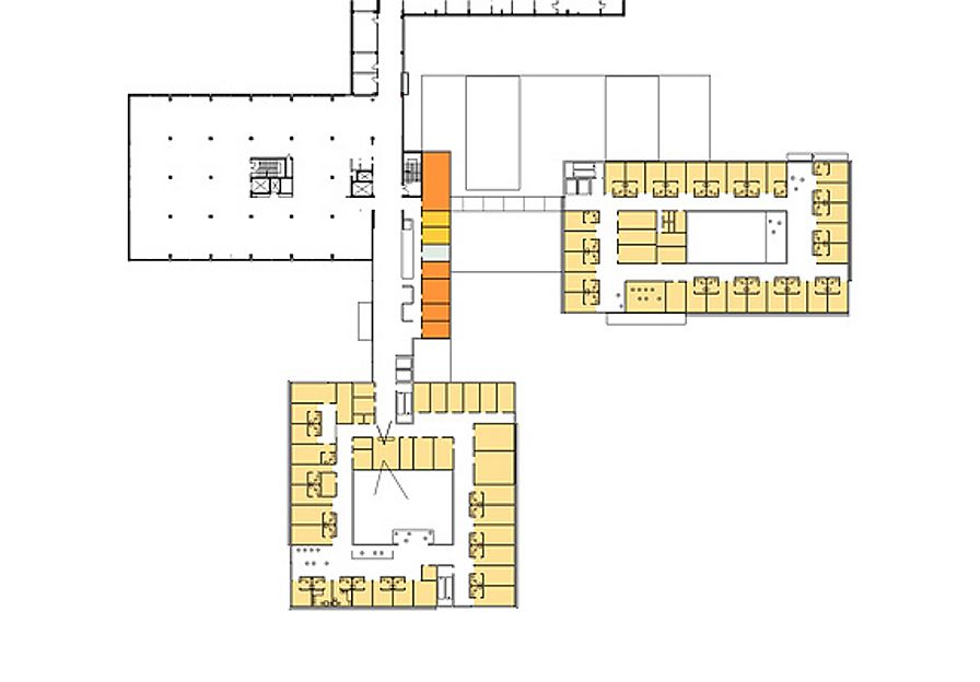
Neubau Psychiatrie, Pädiatrie- und Lymphkliniken im Krankenhaus Wolfsberg
Wettbewerb, 3. Preis

Zwei Neubauten mit Innenhöfen bilden den Abschluss der Krankenhausmagistrale. Die Anordnung der Zimmer um den Hof ermöglicht eine gute Übersicht für das Personal und eine leichte Orientierung für die Patienten. Der Außenraum wird angenehm gegliedert und bietet interessante Perspektiven.